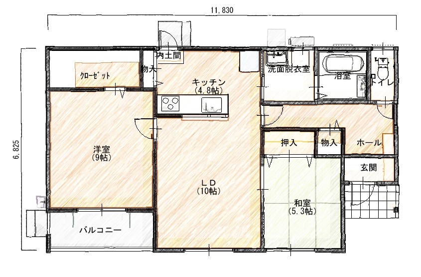
平屋24.0坪
| 建物本体価格 | 1,323万円 |
|---|---|
| 付帯工事費用 | 198万円 |
| 総額(税込) | 1,673万円 |
プラン持ち込み可
概要
自由設計、初期20年最長60年保証、地盤保証20年、設備保証10年、耐震等級3、太陽光発電を含む含まれていない費用
確認申請費、検査費用、長期優良住宅申請費用、土地取得費、住宅ローン費用、給水下水取込費、地盤改良工事費等2026年1月時点の価格です
| 建物本体価格 | 1,323万円 |
|---|---|
| 付帯工事費用 | 198万円 |
| 総額(税込) | 1,673万円 |
プラン持ち込み可
2026年1月時点の価格です